Rustico in vendita

Alpignano, Via Grange Palmero - Grange Palmero
€ 219.000
Prezzo aggiornato
10 locali 10 locali
600 Mq 600 Mq

Rustico in vendita

Alpignano, Via Grange Palmero - Grange Palmero

Descrizione annuncio

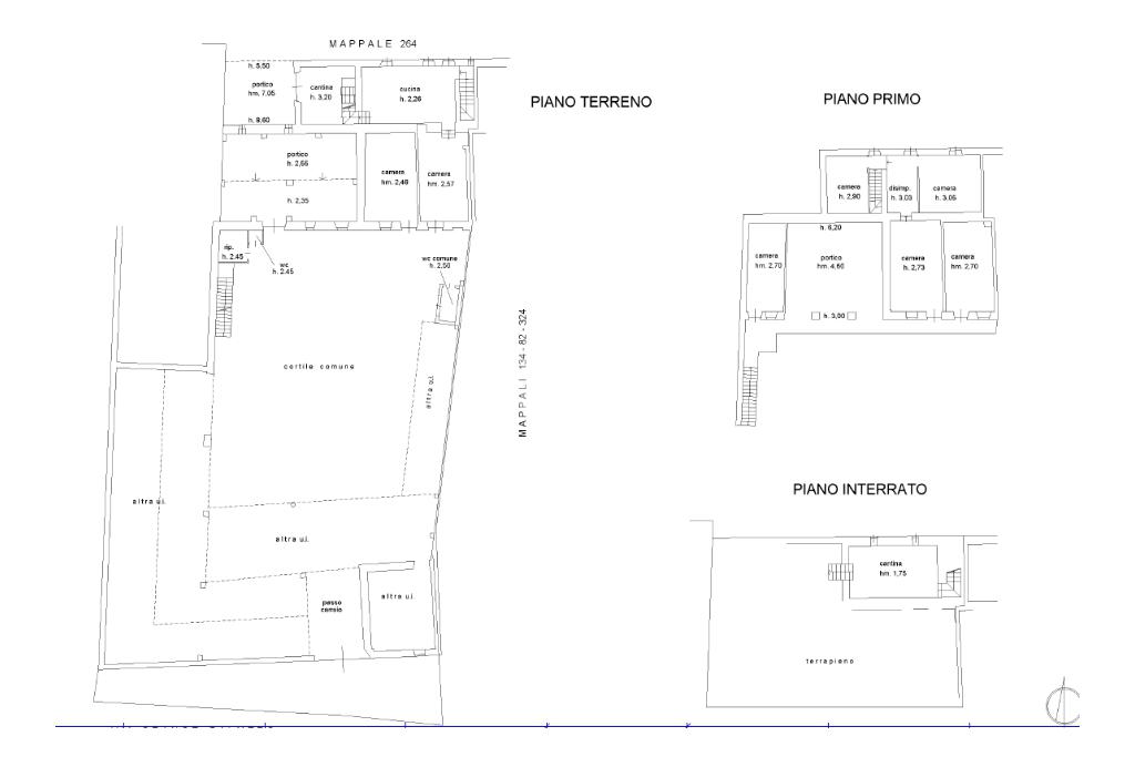
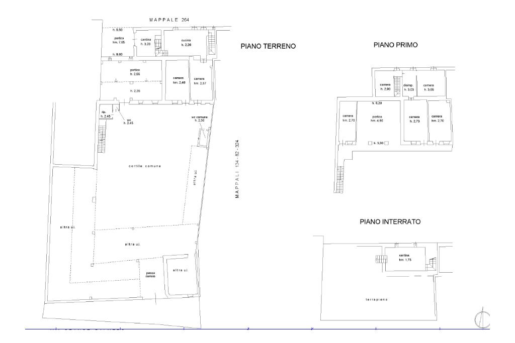
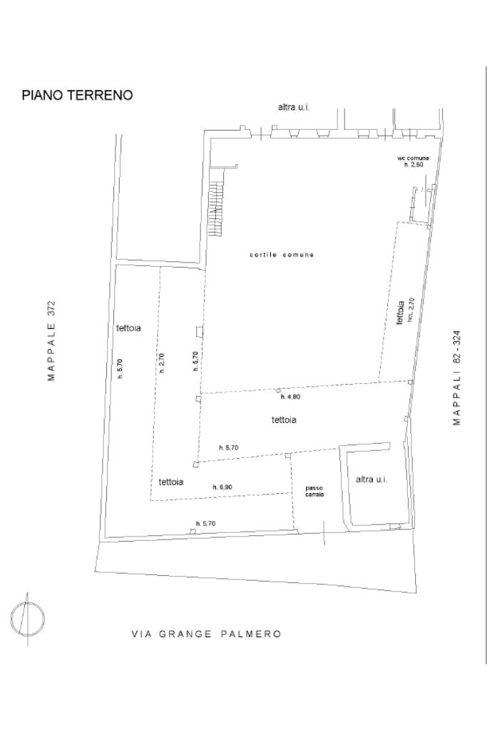
Nel cuore della località di Grange Palmero, nel comune di Alpignano, si trova un affascinante rustico risalente al Novecento. Questa cascina storica offre un'opportunità unica per chi desidera investire in un progetto di recupero. Con una superficie di 300 mq di abitazione, più 300mq di tettoie, l'immobile si presta per diverse soluzioni abitative, permettendo la realizzazione di una bifamiliare o la suddivisione in più unità immobiliari. La struttura conserva il fascino del passato, con elementi architettonici tipici delle costruzioni rurali dell'epoca. La posizione strategica garantisce tranquillità e privacy, pur essendo a breve distanza dai principali servizi e collegamenti. Questo rustico rappresenta una tela bianca per chi sogna di creare una residenza su misura, mantenendo il carattere storico e il fascino autentico di una cascina piemontese.

Mostra tutto

Nelle vicinanze

Trasporto pubblico Trasporto pubblico
Alpignano
Alpignano
2,4 Km
Alpignano (v. Caselette)
Alpignano (v. Caselette)
240 m
Caselette (SS24/v. Galilei)
Caselette (SS24/v. Galilei)
340 m
Ricariche auto elettriche Ricariche auto elettriche
EnelX EVA+ Centro Commerciale Auchan Rivoli
2,8 Km
Scuole Scuole
Scuola Materna "Luigi Caccia"
2,0 Km
Scuola Primaria "Antonio Gramsci"
2,1 Km
Scuola Primaria "Filippo Turati"
2,1 Km
Scuola Secondaria di primo grado "Alberto Tallone"
2,3 Km
Scuola Primaria "Giacomo Matteotti"
2,7 Km
Farmacia Farmacia
Farmacia
820 m
Farmacia Futura
1,1 Km
Farmacia Vietti
1,9 Km
Farmacia Comunale 5
2,0 Km
Farmacia San Giacomo
2,1 Km
Ospedali Ospedali
Ospedali
2,0 Km
RSA Residenza al Castello
2,5 Km
Supermercati Supermercati
U2
2,0 Km
LD
2,6 Km
Lidl
2,6 Km
Carrefour Market
2,7 Km
Negozi Negozi
Panetteria da Franco
1,3 Km
Forno Girolina
1,8 Km
United Colors of Benetton
1,9 Km
Negozi
2,4 Km
Bar Bar
La Caneva de Nino
1,8 Km
Lattolandia
1,8 Km
Bollincine
2,2 Km
Ferehneit 451
2,3 Km
Operà
2,8 Km
Ristoranti Ristoranti
Il Caminetto
1,1 Km
Lo Scacciapensieri
1,3 Km
Lettera 22
1,4 Km
La casa di Totò
2,2 Km
Oasi dello chef
2,3 Km
Mostra tutto

Caratteristiche

Rif.:
61141829
Piano:
Terra di 2
Totale piani:
2
Box:
1
Posti auto:
1
Balconi:
2
Mostra tutto
Prezzo Prezzo
€ 219.000
Rata mutuo Rata mutuo
€ 1.035 / mese
Spese annue Spese annue
€ 0
Proponi il tuo prezzoProponi il tuo prezzo

Classe Energetica

G
G
G
G
G
G
G
G
G
EP globale non rinnovabile:
800.00 kW h/m² anno
EP globale rinnovabile:
800.00 kW h/m² anno
EP invernale del fabbricato:
EP estiva del fabbricato:
Anno di costruzione:
1900
Riscaldamento:
Autonomo
Tipo impianto:
A stufa
Tipo alimentazione:
Metano

Prezzo ridotto di €1 (9%%)

Ti interessa visionare l'immobile?

Fissa un appuntamento  Fissa un appuntamento

Richiedi informazioni

Clicca su Leggi per aprire l'informativa
* Questi campi sono obbligatori

Calcola il tuo mutuo

Semplice e senza impegno
Anticipo

( % )
Mutuo

( % )

pochi semplici passi

inserisci i tuoi dati
Questionario completato
Grazie per aver richiesto un appuntamento senza impegno con un nostro Consulente del Credito e Assicurativo.

Hai inserito correttamente tutti i dati necessari e a breve riceverai una e-mail con un link da convalidare per inviare i tuoi dati.
Affiliato
Immobiliare We Are Flying Sas
Via Cavour, 13 10091 Alpignano (TO)

Il nostro staff


  • Gabriel Ridulfo
    Affiliato

  • Henriette Gabriella Adomnicai
    Coordinatrice

  • Sara Sanfilippo
    Collaboratrice

  • Valentina Valenzano
    Responsabile
Via Cavour, 13 10091 Alpignano (TO)
Zona: Alpignano
Mostra su mappa
Orari: Lunedì - Venerdì: 9.00 - 12.30 / 14.30 - 20.00 Sabato: 9.00 - 12.30 / 14.30 - 19.00
Affiliato
Immobiliare We Are Flying Sas
Via Cavour, 13 10091 Alpignano (TO)

2026 Tecnocasa Franchising S.p.A. - P. IVA 08365160152 - Via Monte Bianco 60/A 20089 Rozzano (MI). Ogni agenzia ha un proprio titolare ed è autonoma. Privacy policy | Policy utilizzo | Cookie policy