Quadrilocale in vendita

Alpignano, Via Camillo Cavour
€ 185.000
4 locali 4 locali
82 Mq 82 Mq
2 bagni 2 bagni

Quadrilocale in vendita

Alpignano, Via Camillo Cavour

Descrizione annuncio

NUOVA RISTRUTTURAZIONE

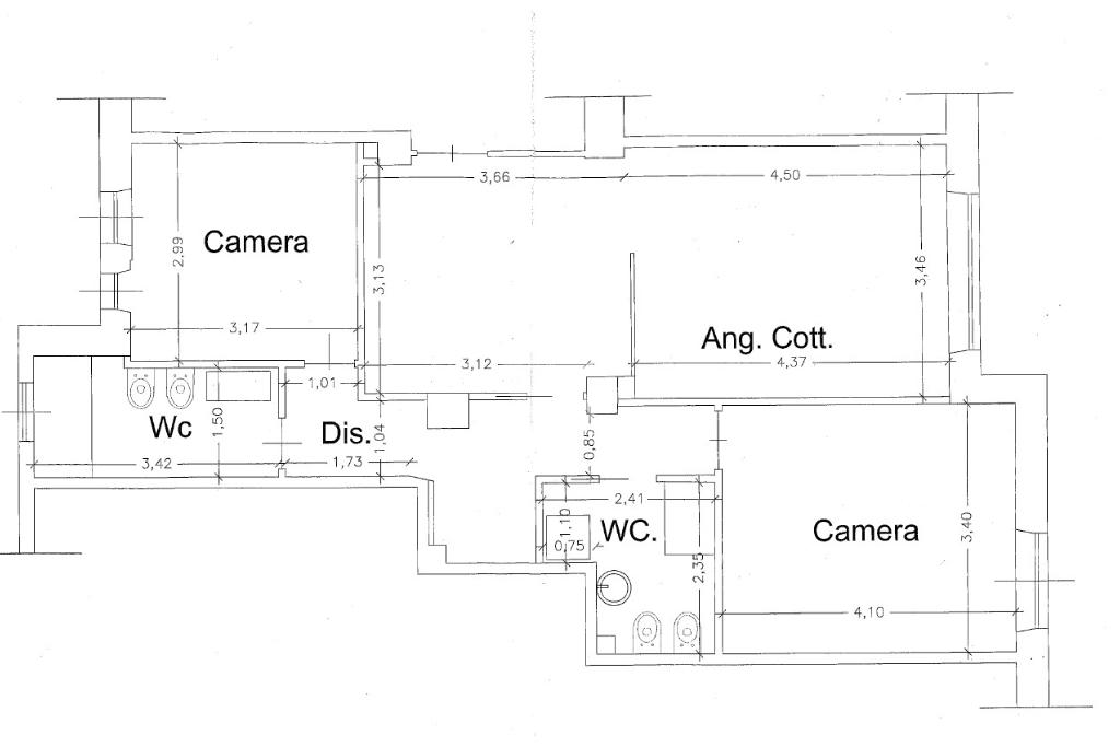
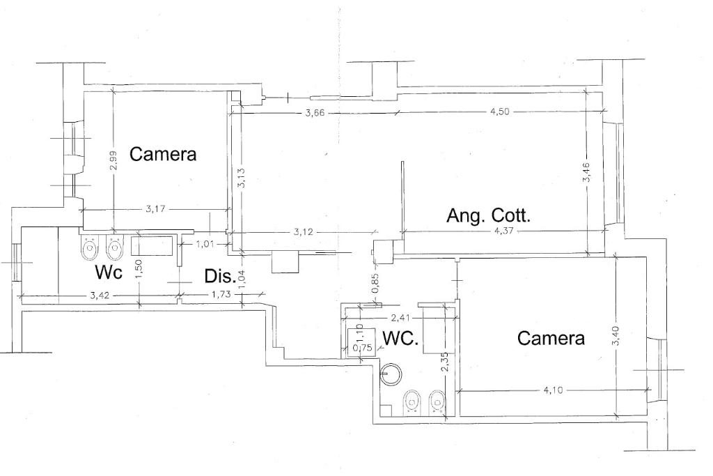
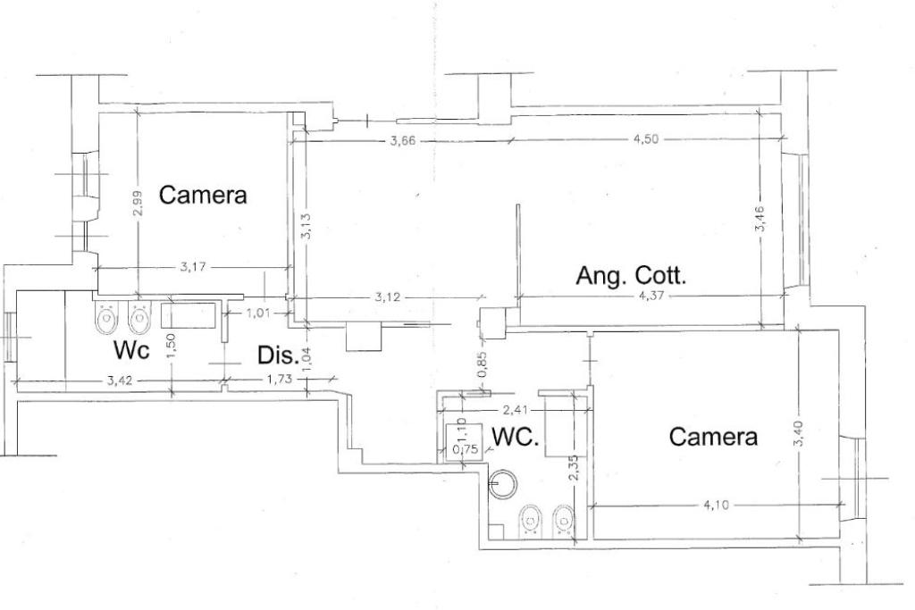
Nel cuore di Alpignano, in posizione centralissima, comodissima a tutti i servizi e ben collegata a Pianezza, proponiamo in vendita splendido quadrilocale di circa 80 mq.

L’alloggio, situato al primo piano servito da ascensore, è inserito in un contesto condominiale completamente ristrutturato, attualmente in fase di ultimazione, con fine lavori prevista per marzo 2026, contesto ideale per chi cerca comfort moderno e qualità costruttiva.

Dal portoncino di ingresso si accede direttamente sul soggiorno living, valorizzato da listelli in legno di design che definiscono con eleganza la separazione tra zona cucina e zona salotto, creando ambienti armoniosi e ben organizzati.

La zona notte è composta da due camere, di cui una matrimoniale e bagno adiacente completo, pensato per garantire comfort e privacy.
Il secondo bagno è dotato di doccia walk-in a filo pavimento, dal gusto moderno e funzionale.

Completano la proprietà due ampi balconi, di cui uno verandato, attrezzato con attacco per la lavatrice, ideale per ricavare una zona lavanderia comoda e funzionale senza rinunciare allo spazio esterno, e la cantina.

L’immobile è in fase di ristrutturazione, con un progetto accurato e di design, studiato nei minimi dettagli, e sarà pronto entro aprile. Le foto sono rappresentative e danno un'idea delle rifiniture.

Una proposta ideale per chi desidera vivere il centro paese in un contesto totalmente rinnovato, con finiture contemporanee.

Mostra tutto

Nelle vicinanze

Trasporto pubblico Trasporto pubblico
Alpignano
Alpignano
340 m
Philips
Philips
130 m
Robotti Capolinea
Robotti Capolinea
270 m
Ricariche auto elettriche Ricariche auto elettriche
Pianezza Papa Giovanni II | EnelX
2,0 Km
Piscina I. Bonino | EnelX
2,1 Km
EnelX EVA+ Centro Commerciale Auchan Rivoli
2,2 Km
Pianezza II Giugno | EnelX
2,7 Km
Scuole Scuole
Scuola Primaria "Filippo Turati"
360 m
Scuola Materna "Luigi Caccia"
580 m
Scuola Primaria "Giacomo Matteotti"
600 m
Scuola Secondaria di primo grado "Alberto Tallone"
710 m
Scuola Primaria "Antonio Gramsci"
860 m
Farmacia Farmacia
Farmacia San Giacomo
140 m
Farmacia
220 m
Farmacia Vietti
510 m
Farmacia Comunale 5
700 m
Farmacia Futura
1,7 Km
Ospedali Ospedali
Ospedali
230 m
RSA Residenza al Castello
520 m
Poliambulatorio ASL
1,8 Km
Poliambulatorio Villa Iris
2,4 Km
IRM
2,5 Km
Supermercati Supermercati
U2
230 m
LD
1,1 Km
Lidl
1,2 Km
Carrefour Market
1,2 Km
iN's
1,6 Km
Negozi Negozi
Negozi
200 m
Forno Girolina
600 m
United Colors of Benetton
650 m
Panetteria da Franco
1,5 Km
Le follie di Katia
1,9 Km
Bar Bar
Bollincine
130 m
Ferehneit 451
820 m
Lattolandia
1,2 Km
Operà
1,3 Km
Bar
1,4 Km
Ristoranti Ristoranti
Oasi dello chef
40 m
La casa di Totò
90 m
Pizza In Piazza
200 m
Ristoranti
310 m
Ristorante Pizzeria Farenheit 451
830 m
Mostra tutto

Caratteristiche

Rif.:
61167096
Piano:
1 di 6 con ascensore (Piano basso)
Balconi:
2
Camere da letto:
2
Arredamento:
Assente
Condizionamento:
Predisposizione impianto
Mostra tutto
Prezzo Prezzo
€ 185.000
Rata mutuo Rata mutuo
€ 875 / mese
Spese annue Spese annue
€ 1.200
Proponi il tuo prezzoProponi il tuo prezzo

Classe Energetica

B
B
B
B
B
B
B
B
B
EP globale non rinnovabile:
32.00 kW h/m² anno
EP globale rinnovabile:
20.00 kW h/m² anno
EP invernale del fabbricato:
EP estiva del fabbricato:
Anno di costruzione:
1970
Riscaldamento:
Centralizzato
Tipo impianto:
A radiatori
Tipo alimentazione:
Metano

Ti interessa visionare l'immobile?

Fissa un appuntamento  Fissa un appuntamento

Richiedi informazioni

Clicca su Leggi per aprire l'informativa
* Questi campi sono obbligatori

Calcola il tuo mutuo

Semplice e senza impegno
Anticipo

( % )
Mutuo

( % )

pochi semplici passi

inserisci i tuoi dati
Questionario completato
Grazie per aver richiesto un appuntamento senza impegno con un nostro Consulente del Credito e Assicurativo.

Hai inserito correttamente tutti i dati necessari e a breve riceverai una e-mail con un link da convalidare per inviare i tuoi dati.
Affiliato
Immobiliare We Are Flying Sas
Via Cavour, 13 10091 Alpignano (TO)

Il nostro staff


  • Gabriel Ridulfo
    Affiliato

  • Henriette Gabriella Adomnicai
    Coordinatrice

  • Sara Sanfilippo
    Collaboratrice

  • Valentina Valenzano
    Responsabile
Via Cavour, 13 10091 Alpignano (TO)
Zona: Alpignano
Mostra su mappa
Orari: Lunedì - Venerdì: 9.00 - 12.30 / 14.30 - 20.00 Sabato: 9.00 - 12.30 / 14.30 - 19.00
Affiliato
Immobiliare We Are Flying Sas
Via Cavour, 13 10091 Alpignano (TO)

2026 Tecnocasa Franchising S.p.A. - P. IVA 08365160152 - Via Monte Bianco 60/A 20089 Rozzano (MI). Ogni agenzia ha un proprio titolare ed è autonoma. Privacy policy | Policy utilizzo | Cookie policy