Quadrilocale in vendita

Alpignano, via Damiano Chiesa
€ 219.000
4 locali 4 locali
121 Mq 121 Mq
2 bagni 2 bagni

Quadrilocale in vendita

Alpignano, via Damiano Chiesa

Descrizione annuncio

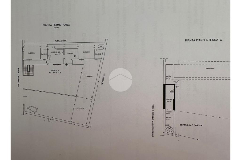
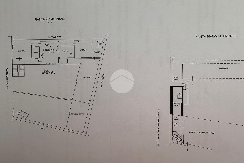
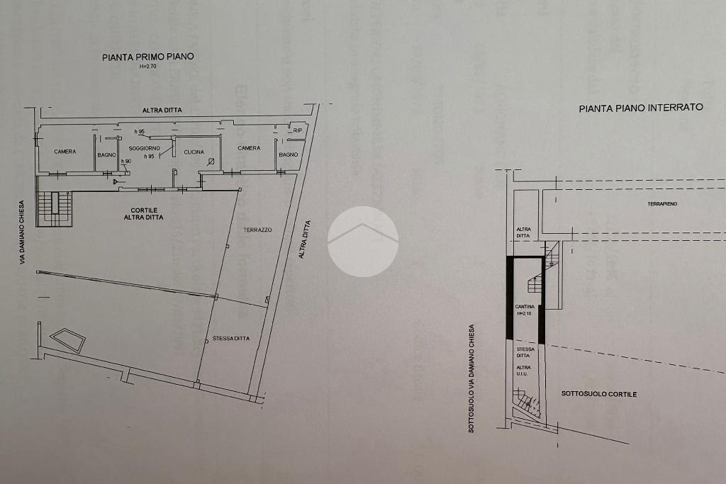
In zona servita, su via interna tranquilla e non trafficata, appartamento in contesto di corte al primo ed ultimo piano. Frutto di un recupero edilizio del 2006, la soluzione si presenta in ottimo stato grazie anche all'attenzione sull'impiantistica: riscaldamento a pavimento, condizionamento con pompa di calore, infissi in doppio vetro. Caratteristico il camino a legna nel soggiorno, adicente ad una grande cucina abitabile con accesso al grande terrazzo esposto a Sud. Due le camere da letto e fondamentali i doppi servizi, entrambi finestrati, rendendo questa soluzione ottimale per una famiglia. La terrazza coperta di circa 70mq offre la possibilità di passare ottimi momenti conviviali e di relax. Completa la proprietà la cantina. Possibilità di affittare il box auto nei pressi dell'abitazione.

Mostra tutto

Nelle vicinanze

Trasporto pubblico Trasporto pubblico
Alpignano
Alpignano
960 m
Toti
Toti
100 m
Vittorio Veneto
Vittorio Veneto
280 m
Ricariche auto elettriche Ricariche auto elettriche
Piscina I. Bonino | EnelX
1,6 Km
Pianezza Papa Giovanni II | EnelX
1,7 Km
Pianezza II Giugno | EnelX
2,3 Km
EnelX EVA+ Centro Commerciale Auchan Rivoli
2,7 Km
Scuole Scuole
Scuola Materna "Luigi Caccia"
50 m
Scuola Primaria "Antonio Gramsci"
240 m
Scuola Secondaria di primo grado "Alberto Tallone"
250 m
Scuola Primaria "Giacomo Matteotti"
780 m
Scuola Primaria "Filippo Turati"
890 m
Farmacia Farmacia
Farmacia Comunale 5
80 m
Farmacia Vietti
290 m
Farmacia San Giacomo
540 m
Farmacia
840 m
Farmacia Futura
1,2 Km
Ospedali Ospedali
RSA Residenza al Castello
450 m
Ospedali
550 m
Poliambulatorio ASL
1,6 Km
Poliambulatorio Villa Iris
2,0 Km
IRM
2,4 Km
Supermercati Supermercati
U2
600 m
LD
660 m
Lidl
710 m
Carrefour Market
800 m
Supermercati
1,7 Km
Negozi Negozi
United Colors of Benetton
170 m
Forno Girolina
290 m
Negozi
800 m
Panetteria da Franco
1,0 Km
Le follie di Katia
1,7 Km
Bar Bar
Ferehneit 451
290 m
Lattolandia
600 m
Bollincine
720 m
Operà
880 m
Caffè Lara
1,7 Km
Ristoranti Ristoranti
Ristorante Pizzeria Farenheit 451
300 m
Ristoranti
610 m
La casa di Totò
620 m
Oasi dello chef
660 m
Pizza In Piazza
810 m
Mostra tutto

Caratteristiche

Rif.:
61153413
Piano:
1 di 1 (ultimo Piano)
Balconi:
1
Terrazzi:
1
Camere da letto:
2
Arredamento:
Assente
Mostra tutto
Prezzo Prezzo
€ 219.000
Rata mutuo Rata mutuo
€ 1.033 / mese
Spese annue Spese annue
€ 0
Proponi il tuo prezzoProponi il tuo prezzo

Classe Energetica

D
D
D
D
D
D
D
D
D
EP globale non rinnovabile:
154.28 kW h/m² anno
EP globale rinnovabile:
79.45 kW h/m² anno
EP invernale del fabbricato:
EP estiva del fabbricato:
Anno di costruzione:
2006
Riscaldamento:
Autonomo
Tipo impianto:
A pavimento
Tipo alimentazione:
Metano

Ti interessa visionare l'immobile?

Fissa un appuntamento  Fissa un appuntamento

Richiedi informazioni

Clicca su Leggi per aprire l'informativa
* Questi campi sono obbligatori

Calcola il tuo mutuo

Semplice e senza impegno
Anticipo

( % )
Mutuo

( % )

pochi semplici passi

inserisci i tuoi dati
Questionario completato
Grazie per aver richiesto un appuntamento senza impegno con un nostro Consulente del Credito e Assicurativo.

Hai inserito correttamente tutti i dati necessari e a breve riceverai una e-mail con un link da convalidare per inviare i tuoi dati.
Affiliato
Immobiliare We Are Flying Sas
Via Cavour, 13 10091 Alpignano (TO)

Il nostro staff


  • Gabriel Ridulfo
    Affiliato

  • Henriette Gabriella Adomnicai
    Coordinatrice

  • Valentina Valenzano
    Responsabile
Via Cavour, 13 10091 Alpignano (TO)
Zona: Alpignano
Mostra su mappa
Orari: Lunedì - Venerdì: 9.00 - 12.30 / 14.30 - 20.00 Sabato: 9.00 - 12.30 / 14.30 - 19.00
Affiliato
Immobiliare We Are Flying Sas
Via Cavour, 13 10091 Alpignano (TO)

2025 Tecnocasa Franchising S.p.A. - P. IVA 08365160152 - Via Monte Bianco 60/A 20089 Rozzano (MI). Ogni agenzia ha un proprio titolare ed è autonoma. Privacy policy | Policy utilizzo | Cookie policy