Trilocale in vendita

Alpignano, Via Migliarone - Centro
€ 159.000
Prezzo aggiornato
3 locali 3 locali
86 Mq 86 Mq
1 bagno 1 bagno

Trilocale in vendita

Alpignano, Via Migliarone - Centro

Descrizione annuncio

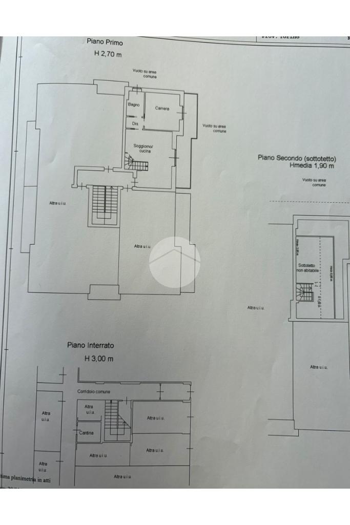
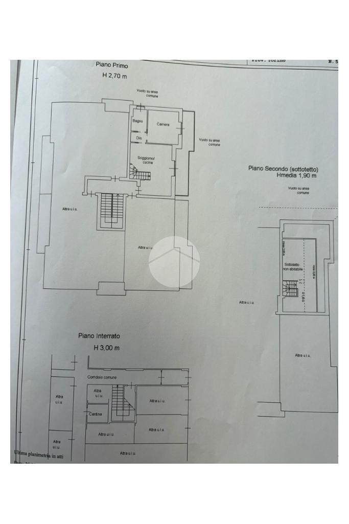
In zona servita e comoda a Pianezza, in una piccola palazzina edificata nel 2015, l'appartamento al primo piano gode di tutte le caratteristiche della nuova costruzione, grazie anche al riscaldamento a pavimento e ai pannelli solari, con boiler di accumulo per l'acqua sanitaria. La soluzione si sviluppa su due livelli, al primo piano ingresso su soggiorno con angolo cottura, disimpegno, ampia camera da letto e bagno finestrato con box doccia. L'ampio terrazzino di pertinenza della zona giorno permette di godere di momenti di relax, grazie alla tranquillità e alla vista sul verde. Tramite una comoda scala in legno si accede alla parte del sottotetto, coibentato e luminoso grazie alla presenza dei velux. Completamente fruibile, si presta per la creazione di una ulteriore camera da letto ed eventualmente una lavnderia o cucina, con attacchi dell'acqua, impianto di riscaldamento e predisposizione per l'impianto di climatizzazione già presenti. Cantina di pertinenza. Libero subito.

Mostra tutto

Nelle vicinanze

Trasporto pubblico Trasporto pubblico
Alpignano
Alpignano
1,2 Km
Rossini
Rossini
70 m
Venaria N.42
Venaria N.42
200 m
Ricariche auto elettriche Ricariche auto elettriche
Piscina I. Bonino | EnelX
1,2 Km
Pianezza Papa Giovanni II | EnelX
1,3 Km
Pianezza II Giugno | EnelX
2,0 Km
Pianezza Via Torino | EnelX
2,8 Km
Scuole Scuole
Scuola Secondaria di primo grado "Alberto Tallone"
190 m
Scuola Primaria "Antonio Gramsci"
230 m
Scuola Materna "Luigi Caccia"
410 m
Scuola Primaria "Giacomo Matteotti"
810 m
Istituto Tecnico Agrario Statale "G. Dalmasso"
1,1 Km
Farmacia Farmacia
Farmacia Comunale 5
310 m
Farmacia Vietti
650 m
Farmacia San Giacomo
860 m
Farmacia
1,1 Km
Parafarmacia San Pancrazio
1,2 Km
Ospedali Ospedali
RSA Residenza al Castello
500 m
Ospedali
890 m
Poliambulatorio ASL
1,3 Km
Poliambulatorio Villa Iris
1,7 Km
IRM
2,1 Km
Supermercati Supermercati
LD
310 m
Lidl
350 m
Carrefour Market
450 m
U2
940 m
Supermercati
1,4 Km
Negozi Negozi
United Colors of Benetton
500 m
Forno Girolina
640 m
Negozi
1,0 Km
Panetteria da Franco
1,2 Km
Le follie di Katia
1,4 Km
Bar Bar
Ferehneit 451
80 m
Operà
540 m
Lattolandia
610 m
Bollincine
1,0 Km
Caffè Lara
1,3 Km
Ristoranti Ristoranti
Ristorante Pizzeria Farenheit 451
80 m
Ristoranti
250 m
La casa di Totò
920 m
Oasi dello chef
940 m
Pizza In Piazza
1,1 Km
Mostra tutto

Caratteristiche

Rif.:
61120880
Piano:
1 di 1 (Piano basso)
Terrazzi:
1
Camere da letto:
2
Arredamento:
Parziale
Condizionamento:
Autonomo
Mostra tutto
Prezzo Prezzo
€ 159.000
Rata mutuo Rata mutuo
€ 750 / mese
Spese annue Spese annue
€ 1.000
Proponi il tuo prezzoProponi il tuo prezzo

Classe Energetica

B
B
B
B
B
B
B
B
B
EP globale non rinnovabile:
95.31 kW h/m² anno
EP invernale del fabbricato:
EP estiva del fabbricato:
Anno di costruzione:
2015
Riscaldamento:
Autonomo
Tipo impianto:
A pavimento
Tipo alimentazione:
Metano

Prezzo ridotto di €1 (4%%)

Ti interessa visionare l'immobile?

Fissa un appuntamento  Fissa un appuntamento

Richiedi informazioni

Clicca su Leggi per aprire l'informativa
* Questi campi sono obbligatori

Calcola il tuo mutuo

Semplice e senza impegno
Anticipo

( % )
Mutuo

( % )

pochi semplici passi

inserisci i tuoi dati
Questionario completato
Grazie per aver richiesto un appuntamento senza impegno con un nostro Consulente del Credito e Assicurativo.

Hai inserito correttamente tutti i dati necessari e a breve riceverai una e-mail con un link da convalidare per inviare i tuoi dati.
Affiliato
Immobiliare We Are Flying Sas
Via Cavour, 13 10091 Alpignano (TO)

Il nostro staff


  • Gabriel Ridulfo
    Affiliato

  • Henriette Gabriella Adomnicai
    Coordinatrice

  • Valentina Valenzano
    Responsabile
Via Cavour, 13 10091 Alpignano (TO)
Zona: Alpignano
Mostra su mappa
Orari: Lunedì - Venerdì: 9.00 - 12.30 / 14.30 - 20.00 Sabato: 9.00 - 12.30 / 14.30 - 19.00
Affiliato
Immobiliare We Are Flying Sas
Via Cavour, 13 10091 Alpignano (TO)

2025 Tecnocasa Franchising S.p.A. - P. IVA 08365160152 - Via Monte Bianco 60/A 20089 Rozzano (MI). Ogni agenzia ha un proprio titolare ed è autonoma. Privacy policy | Policy utilizzo | Cookie policy